Project : “Συγκρότημα μονοκατοικιών στα Νότια προάστια”, έτος 2008-9.
Συνεργασία με τον Μπίχτα Κωνσταντίνο, Πολιτικό Μηχανικό Συνεργασία με μελετητική ομάδα 4 αρχιτεκτόνων και μελετητικό γραφείο, φωτορεαλιστικά έργου Πέτρος Προεστός
Η δυσκολία στο project αυτό ήταν ο συντονισμός. Πέραν το μέγεθος του project, έπρεπε να επιτευχθεί η ιδιοτικότητα του κάθε ιδιοκτήτη, ώστε να μην έχει καμία σχέση με την έννοια της πολυκατοικίας, και ταυτόχρονα έπρεπε να εξασφαλιστεί σε όλους η θέα προς τη θάλασσα, και ταυτόχρονα να συντονιστεί η μελετητική ομάδα, με την ομάδα μεσιτών η οποία έλεγε τις ανάγκες του κάθε πελάτη, αλλά και με τις κατευθύνσεις του ιδιοκτήτη του οικοπέδου.
Project : “Μελέτη για μια αγροικία-Αγροτόσπιτο στα περίχωρα της Αθήνας”, έτος 2006.
Ο πελάτης στην εν λόγω περίπτωση ζήτησε μια αγροικία για τον ελάχιστο ελεύθερο χρόνο που διέθετε, ώστε να ξεφεύγει όποτε μπορεί με φίλους, κοντα στην Αθήνα. Μια πολύ σημαντική αρχή σχεδιασμού στη σύνθεση αυτή, ήταν μια "κλειστή" εσωτερική αυλή, με ψησταριά, ώστε να είναι με την παρέα του, αλλά να έχει και την ιδιωτικότητά του. Όλη η κάτοψη σχεδιάστηκε σαν ένα Π γύρω από την εσωτερική αυλή.
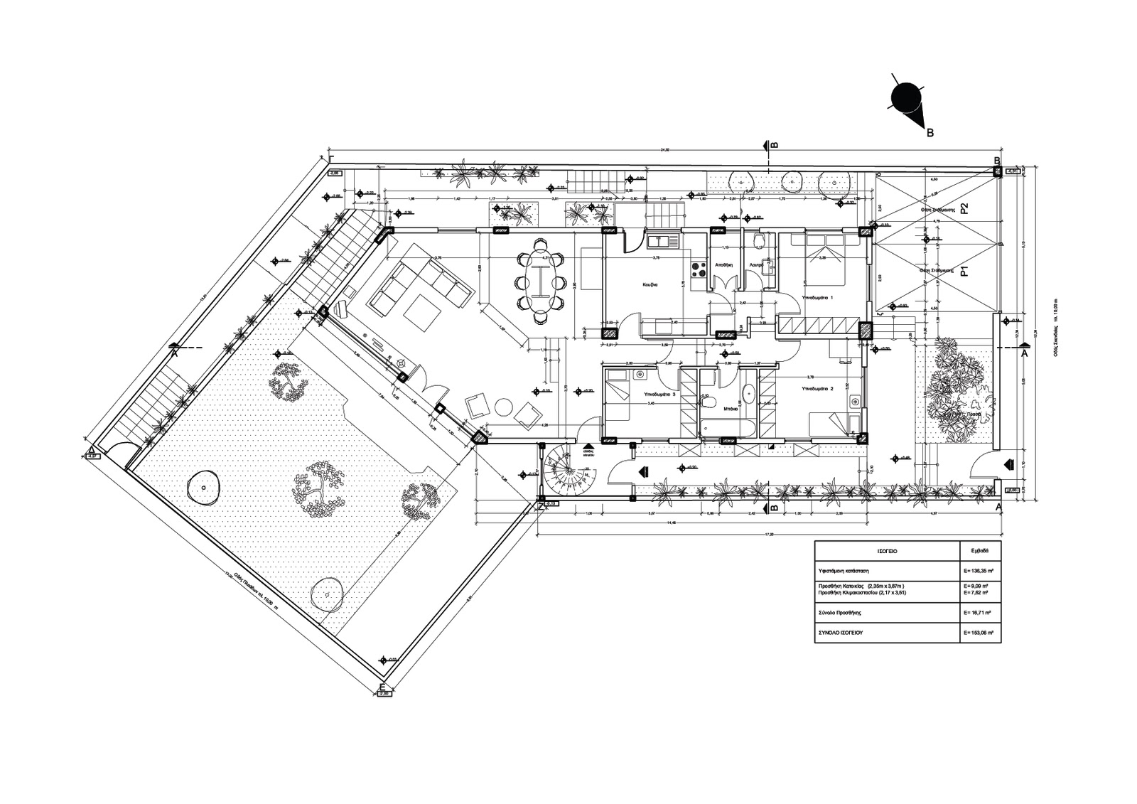
Η μονοκατοικία αυτή αποτελούνταν από υπόγειο (γραφείο), ισόγειο, Α' όροφο και σοφίτα, και στόχος της προσθήκης ήταν να χωριστεί σε 2 κατοικίες, με ξεχωριστή είσοδο. Η πρώτη θα είχε υπόγειο - ισόγειο και η δεύτερη τον 1ο όροφο και τη σοφίτα. Η εύρεση της λύσης είχε δυσκολία όσον αφορά την προσθήκη της εισόδου, ώστε να μην ενοχλεί το "καθημερινό' της κατοικίας στο Ισόγειο, αλλά και στον λειτουργικό σχεδιασμό της κατοικίας στον Α΄όροφο, όπου από εκεί που ήταν τα υπνοδωμάτια με τα μπάνια τους, έπρεπε να σχεδιαστεί μια κατοικία εκ του μηδενός, με κουζίνα, σαλόνι, καθημερινό και υπνοδωμάτια....Το αποτέλεσμα της μελέτης άφησε ευχαριστημένους και τους ιδιοκτήτες αλλά και τους γείτονες!
![]() |
| Ισόγειο |
![]() |
| Α' όροφος |
![]() |
| Σοφίτα |



























